Максимум надежности и эстетики в одном решении
Инсталляционная система Tece Tecebase 2.0 в премиальной комплектации — это выбор для тех, кто не готов идти на компромиссы. Прочная стальная рама с регулируемым креплением, встроенная шумоизоляция и металлическая панель смыва Tecesolid с покрытием под матовый хром. Все элементы объединены немецким качеством и 10-летней гарантией. Идеальная основа для подвесного унитаза в интерьере, где важна каждая деталь.
-
Немецкое качество: Tece — мировой лидер в области встраиваемой сантехники.
-
10 лет гарантии: Заводская уверенность в долговечности конструкции.
-
Металлическая кнопка Tecesolid: Премиальный материал, приятный на ощупь и устойчивый к износу.
-
Бесшумная работа: Встроенная шумоизоляция для комфорта в любое время суток.
Ключевые преимущества
1. Премиальная кнопка из металла
В комплекте — панель смыва Tecesolid из прочного металла с покрытием под матовый хром (сатин). Это не просто функциональный элемент, а стильный акцент интерьера. Металл не выцветает, устойчив к царапинам, легко чистится и приятен на ощупь. Клавиши оснащены резиновыми накладками для мягкого, бесшумного нажатия.
2. Абсолютная тишина
Никто не любит просыпаться от шума наполняющегося бачка. Встроенная шумоизоляция эффективно гасит звуки воды, делая работу системы практически бесшумной. Идеальное решение для совмещенных санузлов, квартир с тонкими стенами и частных домов.
3. Универсальный монтаж с регулировкой
Регулируемая рама позволяет адаптировать систему под любые условия:
-
Напольное крепление — для капитальных стен и максимальной надежности.
-
Стеновое крепление — для установки в гипсокартонные перегородки и ниши.
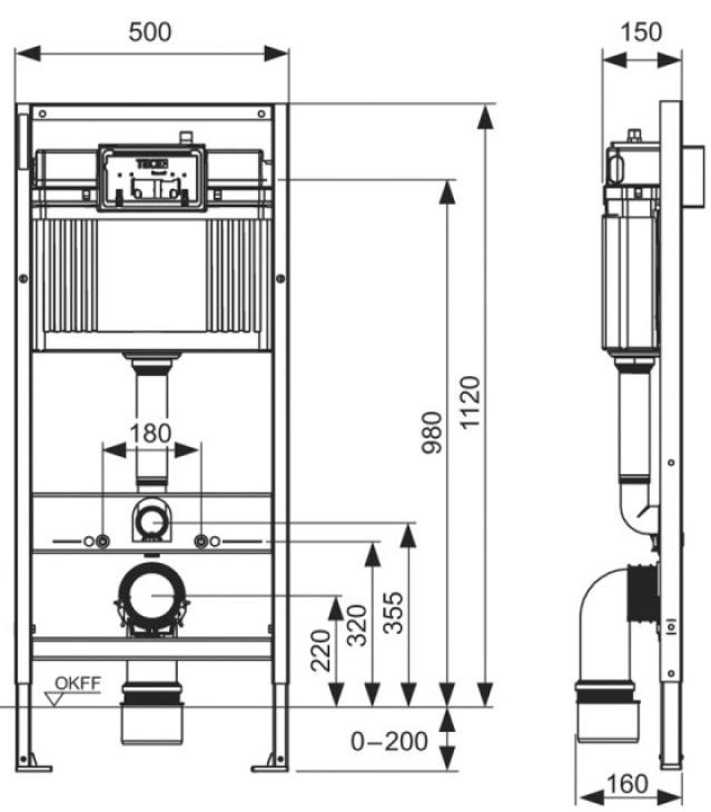
Габариты рамы (112 × 50 × 16 см) подходят для большинства типовых планировок.
4. Немецкая надежность на десятилетия
Стальная рама с антикоррозийным покрытием, экологичные материалы и многоступенчатый контроль качества на производстве гарантируют долгий срок службы. Tece соответствует всем европейским и международным стандартам безопасности.
