Идеальное решение для монтажа без капитальной стены
Застенный модуль Tece Tecespring S500393 — это самостоятельная инсталляционная система, которая не требует наличия несущей стены. Благодаря четырем регулируемым опорам конструкция устойчиво стоит на полу и может быть зафиксирована к стене для дополнительной надежности. Это идеальное решение для каркасных перегородок, гипсоколитных стен, а также для помещений, где нет возможности крепить инсталляцию к капитальной стене. В комплекте — всё необходимое для монтажа, кроме панели смыва.
-
Четыре опоры: Устойчивая самостоятельная конструкция без несущей стены.
-
Немецкое качество: Tece — мировой лидер инженерных систем.
-
10 лет гарантии: Заводская уверенность в долговечности.
-
Настраиваемый смыв: Малый от 3 до 5 л, большой от 4 до 6 л.
1. Самостоятельная конструкция — без несущей стены
Этот модуль создан для ситуаций, когда невозможно или нежелательно крепить инсталляцию к стене:
-
Каркасные и гипсокартонные перегородки недостаточной прочности
-
Старые стены, которые не выдержат нагрузки
-
Отсутствие стены позади унитаза
-
Необходимость установки в центре помещения
Четыре устойчивые опоры позволяют модулю стоять самостоятельно, а дополнительные крепления к стене обеспечивают максимальную надежность.
2. Полная комплектация для монтажа (кроме кнопки)
В комплект входит всё необходимое для установки:
-
Несущая монтажная рама с порошковым покрытием
-
Предварительно собранный сливной бачок (6 л)
-
Две крепежные шпильки M12 с гайками для унитаза
-
Соединительный комплект унитаза с защитными заглушками
-
Звукоизоляционная прокладка для унитаза
-
Комплект крепежа для установки модуля
-
Фановый отвод для подключения к канализации DN 110
-
Изоляция для предотвращения образования конденсата
Вам остается только выбрать панель смыва.
3. Гибкая настройка смыва и защита от конденсата
Объем бачка — 6 л с возможностью точной регулировки:
-
Малый смыв: от 3 до 5 литров
-
Большой смыв: от 4 до 6 литров
Регулировка сливного клапана позволяет настроить скорость смыва для предотвращения разбрызгивания воды из чаши унитаза. Встроенная изоляция предотвращает образование конденсата на бачке, защищая конструкцию от влаги.
4. Профессиональная надежность
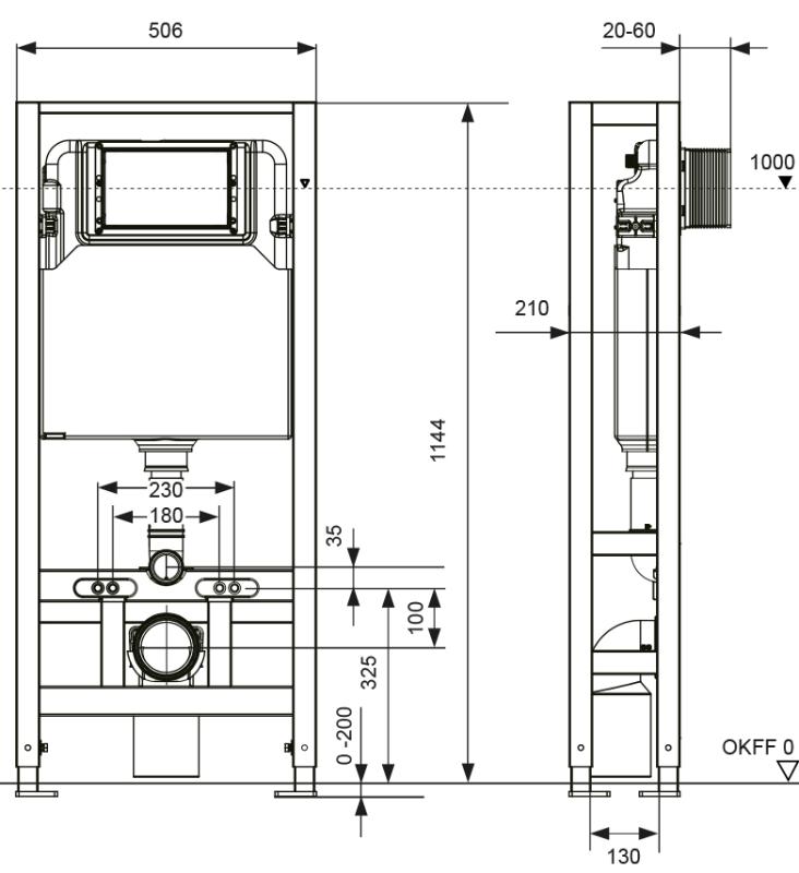
Модуль изготовлен из высококачественной стали с порошковым покрытием, устойчивым к коррозии. Высота 1144 мм соответствует стандартным размерам подвесных унитазов. Фановый отвод DN 110 готов к подключению к канализации (опционально могут потребоваться адаптеры в зависимости от конфигурации).
