Надежная основа для подвесного унитаза с возможностью выбора дизайна
Инсталляционная система Tece Tecespring S300300 — это практичное решение для профессионального монтажа. В комплекте: усиленная стальная рама, бачок с двойным смывом и качественная шумоизоляция. Кнопка смыва приобретается отдельно, что позволяет вам самостоятельно выбрать идеальную панель под свой интерьер. Немецкое качество, 10 лет гарантии и полная готовность к монтажу делают эту модель отличным выбором для тех, кто ценит свободу комплектации.
-
Свобода выбора: Кнопка не входит в комплект — вы подбираете идеальную панель.
-
Бесшумная работа: Встроенная шумоизоляция для комфорта в любое время.
-
Немецкое качество: Tece — мировой лидер в области встраиваемой сантехники.
-
10 лет гарантии: Заводская уверенность в долговечности конструкции.
1. Свобода выбора кнопки смыва
Поскольку кнопка не входит в комплект, вы можете подобрать идеальную панель под интерьер ванной комнаты. Ассортимент TECE включает множество вариантов:
-
Tecespring V — прямоугольная, хром глянец или черный матовый
-
Tecespring R — круглая, хром глянец или черный матовый
-
Премиальные панели из нержавеющей стали (сатин, Gun Metal, Gold)
Наши менеджеры помогут выбрать совместимую модель под ваш стиль.
2. Бесшумная работа — комфорт для всей семьи
Встроенная шумоизоляция эффективно гасит звуки наполняющегося бачка. Никакого шума воды, особенно в ночное время. Идеальное решение для совмещенных санузлов, квартир с тонкими перегородками и частных домов, где санузел расположен рядом со спальней.
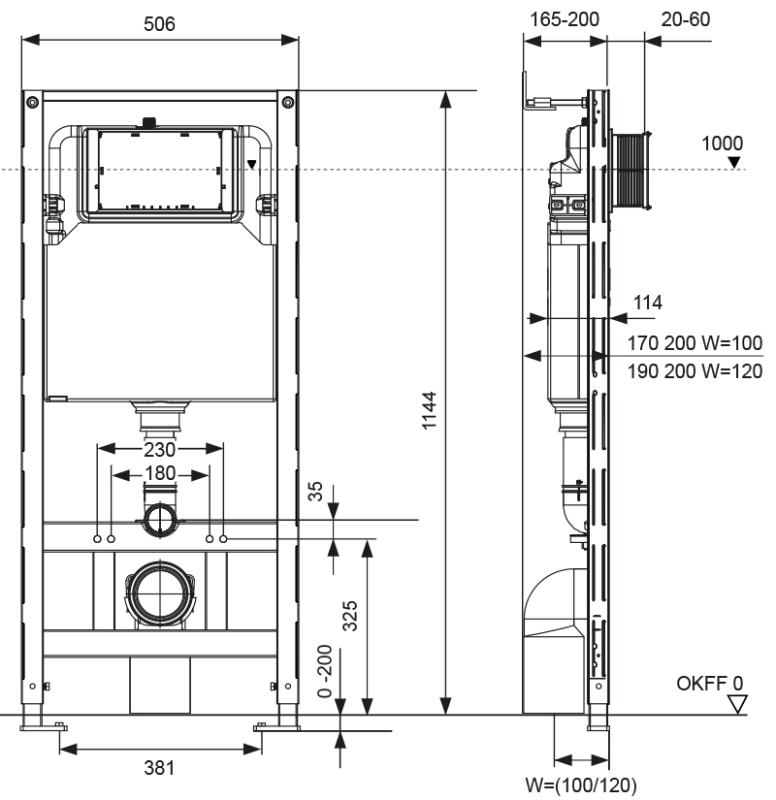
3. Универсальный монтаж и надежность
Регулируемая рама подходит для напольного и стенового крепления. Вы можете установить систему как на капитальную стену, так и в гипсокартонную перегородку. Антикоррозийное покрытие рамы и экологичные материалы гарантируют долгий срок службы. Модуль выдерживает нагрузку не менее 400 кг.
4. Полная базовая комплектация
В комплекте есть всё необходимое для монтажа, кроме кнопки:
-
Усиленная монтажная рама Tecespring
-
Сливной бачок с двойной системой смыва
-
Шумоизоляция бачка
-
Комплект крепежных элементов
Вам не придется докупать дополнительные детали — только выбрать подходящую панель смыва.
